施工事例
出雲市 I様邸
マンション水廻りリフォーム施工事例
お施主様のお母様が暮らしていらっしゃったマンションを譲り受けられることになり、水廻りの交換等リフォームのご依頼をいただきました。
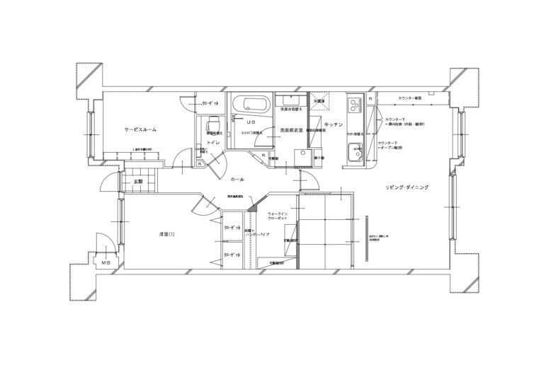
間取り図
施工についてのポイント
WIC
和室を6帖から3帖にし、押入部分をウォークインクローゼットにしました。
デッドスペースが減り収納力が上がりました。

キッチン背面収納
以前はキッチンからも洗面脱衣へ行ける動線になっていた為、収納が少なく炊飯器・電子レンジ等を置く場所がありませんでした。
背面収納を設置し家電や食器類がスッキリ収納できるようになりました。

お問い合わせ
ご相談・お問い合わせはこちらから
お気軽にいつでもご相談ください。
夢工房では、実際に見て、体感して、確かめることができる
体感ギャラリー、ショールーム、モデルハウスを
ご用意しておりますので、お気軽にお立ち寄りください。









































