施工事例
大田市 N様邸邸
戸建て住宅リフォーム施工事例
リフォームで始める、ふたりの新しい暮らし
- 工期
- 約1ヶ月半
- 間取り
- -
- 築年数
- -
- 竣工
- 2025年
- 設計
- 夢工房
築15年の中古住宅をご購入されご結婚を機に、新生活に合わせて内装・水廻り改修を行いました
奥様は、木目調のキッチンを選ばれ木の温もりを感じるナチュラルな雰囲気に合わせ、床材や家電収納を組み合わせました
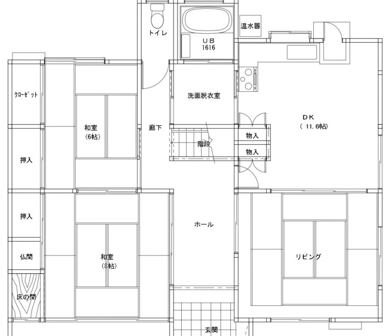
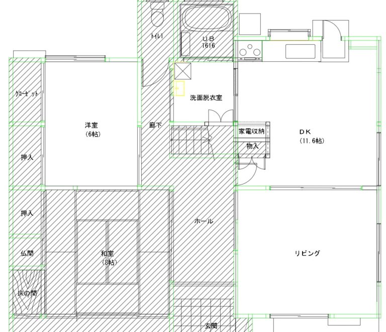
二間続きの和室のうち建具等を撤去し一室を明るく開放的な洋室へ改修、使い勝手が良くなり、暮らしやすさがぐっと向上しました
和室を残していますので、来客時やくつろぎの場としても活用できますね
間取り図
施工についてのポイント
畳の二間を一室ずつに分け、そのうち一室を寝室へ改修しました
壁の新設により、プライベート性が大幅に向上し落ち着ける空間となりました


高さ固定の棚で家電が収まらず、使いにくい収納スペースでしたが、可動棚を施工し、家電に合わせて高さ調整が可能になりました

杉材を使用したセードで、和紙貼りのアクリルが柔らかな印象な照明を選ばれました
自然素材な質感が落ち着きます

担当者より

先日、改修工事を終えた N様のお住まいへ、アフターフォローを兼ねて訪問させていただきました。
お引渡しから半年が経ち、実際の使い勝手や住み心地についてお話を伺いました。
扉を開けた瞬間、思わず「わぁ…」と声が漏れるほど、キッチンとダイニングが見事に調和した
素敵な空間が広がっていました。
なかでも目を引いたのは、ダイニングの中心に据えられた丸形ダイニングテーブル。
ご夫婦でじっくり選ばれたというそのテーブルは、空間にしっくりと馴染みながらも存在感を放っていました。
【写真】
さらに、ブラックを基調とした家電が並び、改修で整えた収納にスッキリと収まっています。
「せっかく綺麗になったので、家電も揃えたくなって」と奥様が嬉しそうにお話しくださいました。
棚や引き出しの使い方もとても上手で、必要なものはすぐに手に取れるのに、生活感はしっかり抑えられています。
おしゃれに、そして機能的に収納されていました。
「収納をしっかりつくったことで片付けやすくなりました。
気が付けば自然と散らからないダイニングになっています☺」と奥様。
改修後の暮らしを楽しんでくださっている様子が伝わり、私もとても嬉しくなりました。
今回の訪問を通して、N様が新しい空間を大切に使い、心地よく過ごしてくださっていることを実感できました。
これからも、暮らしがより豊かになるお手伝いができればと思います。
お問い合わせ
ご相談・お問い合わせはこちらから
お気軽にいつでもご相談ください。
夢工房では、実際に見て、体感して、確かめることができる
体感ギャラリー、ショールーム、モデルハウスを
ご用意しておりますので、お気軽にお立ち寄りください。









































