施工事例
大田市 O様邸邸
戸建て住宅リフォーム施工事例
〝使わない部屋〟が、〝必要な空間〟へ ~暮らしに寄り添うガレージリフォーム~
- 工期
- 約2ヶ月
- 間取り
- -
- 築年数
- 40年~50年
- 竣工
- 2025年
- 設計
- 夢工房
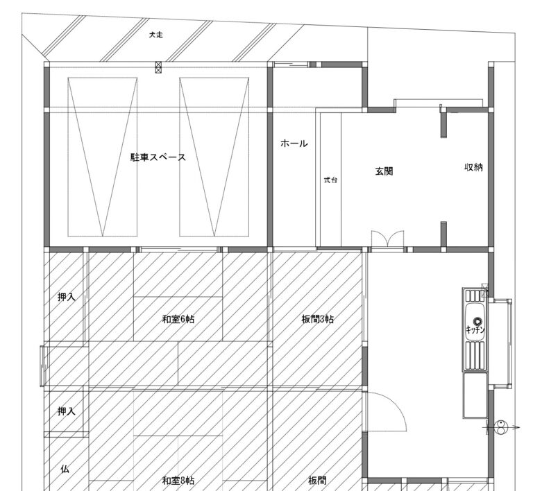
改修前は、ご自宅前に駐車場を借りておられましたが、将来を見据え、普段使われていなかった和室をガレージへと改修しました。
念願の駐車スペースが完成し、雨風を気にせず荷物の出し入れができるようになりました。
日常の動線がスムーズになり、より快適にお過ごしいただける空間となっています。
玄関には収納庫を新設し、タイヤの保管場所として活用できるようにしました。
O様のお母様も、玄関内に十分な収納スペースが確保できたことで、とても安心されたご様子でした。
玄関の引戸は洋風のデザインを採用しつつ、日本家屋の落ち着いた雰囲気とも美しく調和しています。
上部の欄間を撤去・開口部を広く確保し、さらに断熱性に優れた引戸を採用し、室内外の熱の出入りを大幅に抑えることができました。
間取り図
施工についてのポイント
念願の駐車スペースが完成し、雨風を気にせず荷物の出し入れができるようになり、日常の動線もスムーズに

使われていなかったドアを取り外し、玄関には開き窓を設けました
キッチンにいても、玄関に来られた方の気配がやさしく伝わるようになり、安心感のある空間になりました

担当者より

和室を改修し玄関ホールを施工、O様とお母様の作品が飾ってありました
手づくりの作品たちで明るく優しい空間となっています☺
お問い合わせ
ご相談・お問い合わせはこちらから
お気軽にいつでもご相談ください。
夢工房では、実際に見て、体感して、確かめることができる
体感ギャラリー、ショールーム、モデルハウスを
ご用意しておりますので、お気軽にお立ち寄りください。





































