施工事例
出雲市 S様邸
実家リノベーション施工事例
ご両親が建てられた築25年の家を譲りうけられたS様ご夫妻は、今のご自分達のライフスタイルに合わせて生活が出来るようにリノベーションをご計画されました。
天気を気にせず洗濯物が干せるランドリールーム、ソファーで座っている人との目線が合いやすい小上がりの和室、適所に収納を置くなど様々な所にこだわりをつめこまれました。
1階部分をリノベーション、2階は間取りの変更をせずリフォームをしています。





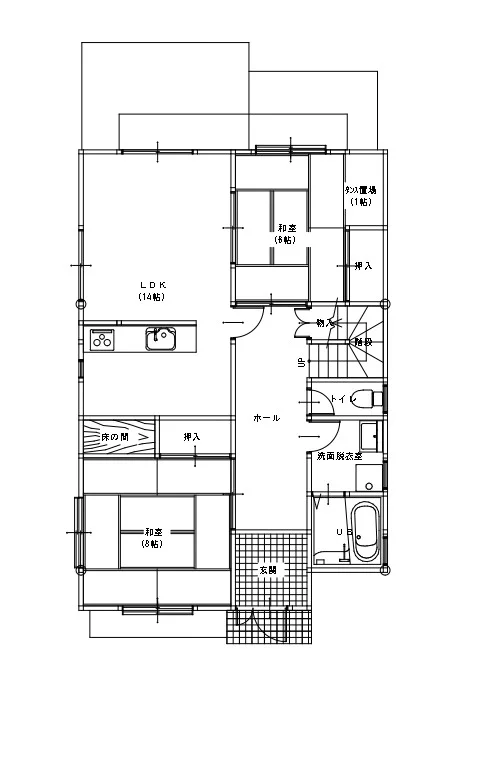
間取り図
施工についてのポイント
小上がりの和室
ダイニングやソファーで座っている人との目線が合う高さになっています。
見せる梁
LDKのアクセントになる梁を見せたいとのご要望があり、元々の梁は横方向に入っていましたが、縦に入れ梁を見せました。
ランドリールーム
天気を気にせず洗濯物が干せるランドリールームにはアイロンがかけられるようカウンターと、下洗いが出来るようスロップシンクを設けています。
お問い合わせ
ご相談・お問い合わせはこちらから
お気軽にいつでもご相談ください。
夢工房では、実際に見て、体感して、確かめることができる
体感ギャラリー、ショールーム、モデルハウスを
ご用意しておりますので、お気軽にお立ち寄りください。

















































