施工事例
大田市 Y様邸
戸建て住宅二世帯リノベーション施工事例
それぞれの生活を大切に・・実家二世帯リノベ
- 工期
- 約6か月
- 間取り
- その他
- 築年数
- 50年~
- 竣工
- 2025年
- 設計
- 夢工房
思い出のある生まれ育ったご実家に、独立された息子様ご家族が戻られリノベーションをご計画されました。
築60年以上のご実家を耐震・断熱性能を新築同様に高め、玄関のみ共用されほぼ独立型の二世帯住宅となりました。
玄関ホールから左右に親世帯・子世帯へ分かれます。
それぞれに水廻りやリビングがあるため、世帯間でゆったりと時間が過ごせます。
二世帯でありながら隣近所に住んでいる感覚と言えます☺
お互いに何かあった時にすぐに駆けつける適度な距離感が安心できますね。


































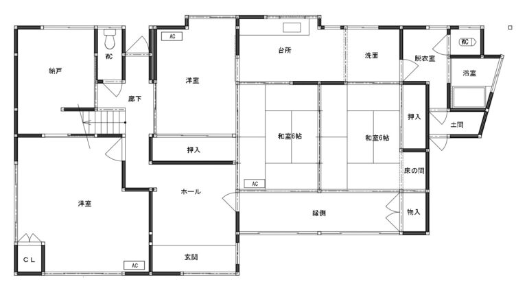
間取り図
施工についてのポイント
全面バリアフリー化
ご実家は、築年数が異なる建物が連結され、部屋ごとに床の高さが違いました。
古い木造住宅と比較的新しい増築部分が混在していると、構造・基礎・床材の違いから段差が生じやすくなります。
段差解消・構造補強と同時に行いました。

ルンバ基地
収納棚下を活用し〝ルンバ〟の充電・待機・収納スペースを施工しました。

式台を再利用
ご実家の玄関で使い込まれていた式台を再利用しました。
時間の経過とともに刻まれた風合い・足ざわりが良く思い出が蘇ります。

お問い合わせ
ご相談・お問い合わせはこちらから
お気軽にいつでもご相談ください。
夢工房では、実際に見て、体感して、確かめることができる
体感ギャラリー、ショールーム、モデルハウスを
ご用意しておりますので、お気軽にお立ち寄りください。






















