施工事例
出雲市 I様邸
二世帯住宅リノベーション施工事例
実家でご両親と暮らされるI様家族は、ご両親に甘えすぎない生活がしたいという想いから建物の一部をリノベーションして二世帯にする計画を立てられました。
1階にお祖母ちゃんの部屋、その上の2階にはお父さんの部屋があり、この2部屋を使い水廻り一式とリビングと個室2部屋をご要望されました。
コンパクトの中にも暮らしやすい動線と大切な漫画のコレクションを収納するスペースをしっかり確保し、これからの生活がワクワクする空間が出来ました。
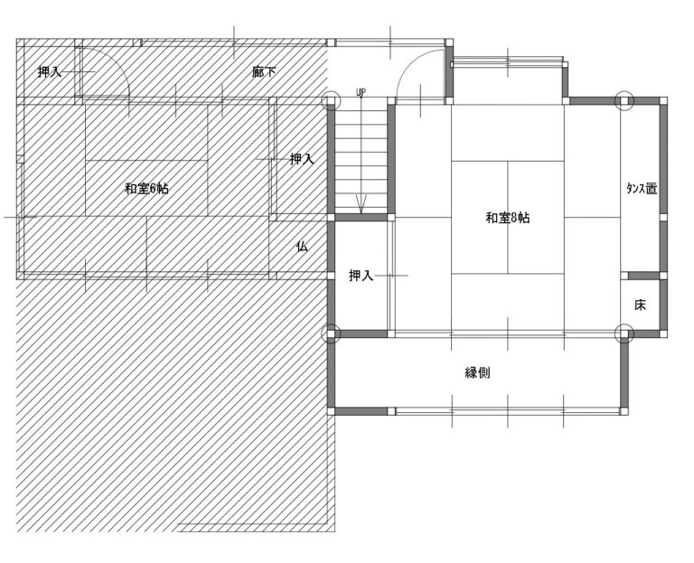
間取り図
施工についてのポイント
漫画コレクションの収納スペース
お施主様は漫画が大好きで、たくさん本をお持ちです。
キッチンカウンターやキッチンの背面、階段下等に本棚を設けました。

脱衣兼ランドリールーム
脱衣には洗濯物が干せるように昇降式の物干しをつけました。

2階廊下を使った収納
廊下部分を有効的に使った収納スペースは部屋のクローゼットに入らない物をしまえるようにしています。

お問い合わせ
ご相談・お問い合わせはこちらから
お気軽にいつでもご相談ください。
夢工房では、実際に見て、体感して、確かめることができる
体感ギャラリー、ショールーム、モデルハウスを
ご用意しておりますので、お気軽にお立ち寄りください。













































