施工事例
大田市 Y様邸邸
戸建て住宅リノベーション施工事例
断熱で心地よく、彩りで元気に‼ 家族がほっとする住まい
- 工期
- 3ヶ月
- 間取り
- -
- 築年数
- -
- 竣工
- 2025年
- 設計
- 夢工房
アパートで暮らしておられた Y 様ご家族。
お子さまの成長とともに動きも活発になり、生活音など周囲への気遣いが増えてきたことから、より広々とした住まいが必要だと感じられ、ご実家の離れを改修されることになりました。
1階が車庫兼倉庫となっているため離れの2階は冬になると足元から冷気が忍び込み、暖房を入れてもなかなか温まりにくいというお悩みがありました。
そこで、断熱工事と窓の改修を行い、快適に過ごせる浴室・洋室・洗面スペースへとして生まれ変わる工事を行いました。
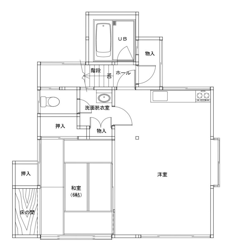
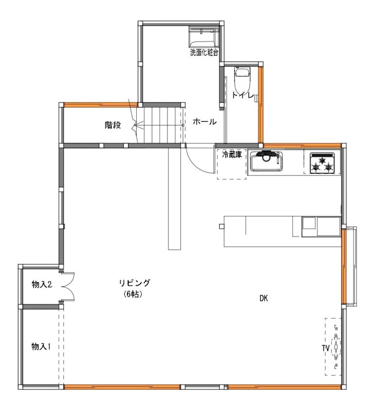
2階は、和室・物入・トイレを思い切って撤去し、ひとつの大きなリビング空間へ。
壁がなくなったことで視界が一気に広がり、光が奥まで届く明るいフロアになりました。
DKとリビングをつなげたことで、料理をしながら家族の様子を見守れるレイアウトに。
小さなお子さまがいるご家庭にとっては、安心感がぐっと高まります。
広いリビング・DKは、家族がそれぞれ好きなことをしながらも、同じ空間で過ごせる心地よさがあります。
間取り図
2階 平面図
施工についてのポイント
天井は、あえて梁を見せる「現し(あらわし)」仕上げを採用しました
構造材の力強さがそのままデザインとなり、木の温もりが感じられる落ち着いた雰囲気になりました

毎日使う場所だからこそ、「どこに何があるか」「どれだけ取り出しやすいか」で家事のしやすさは大きく変わります
今回は、Y様の暮らし方に合わせて、使い勝手を最優先に考えた“造作棚”をつくりしました


2階のDKには、奥様のお好きな“緑”をキッチン扉に取り入れました
日々の暮らしの中で、ふと気持ちが和らぐような、優しいアクセントになっています

担当者より

お引渡しの際、広々としたLDKではお子さまが元気いっぱいに走り回ったり、収納スペースにかくれんぼをして遊んだりと、新しい住まいを思いきり楽しんでおられました♪
ご家族皆さまで記念のピース写真を撮らせていただきました
あふれる笑顔に触れ、私ども施工業者としても大変嬉しく、胸が温かくなる思いでした
新しいお住まいが、ご家族のさらなる笑顔の場となりますよう心より願っております
お問い合わせ
ご相談・お問い合わせはこちらから
お気軽にいつでもご相談ください。
夢工房では、実際に見て、体感して、確かめることができる
体感ギャラリー、ショールーム、モデルハウスを
ご用意しておりますので、お気軽にお立ち寄りください。











































