大田市 中古住宅リノベーション O様邸 着工しました
投稿日:2026.02.02
リフォーム・リノベーション専門店
夢工房大田店の森原です
いつもHP訪問
ブログ閲覧いただき
ありがとうございます
このたび O様がご購入されました
中古住宅のリノベーション工事が
先週、着工しました
(施工前)
(着工中)
現在はアパートにお住まいですが・・・
〇お子さまがおられるので手狭になった
〇慣れ親しんだ大田市内で、
これからもご家族で暮らし続けたい
〇お子様たちの学校や生活環境を変えたくない
〇予算内で子育てしやすい環境を計画したい
というO様のお気持ちから
アパート近くで中古住宅を探されていました
お子さまの通学環境も
変わらない物件が見つかり、
昨年4月に開催しました
〝中古住宅相談会〟にご参加いただき
現地確認・プランづくりを経て、
いよいよ工事がスタート!!します
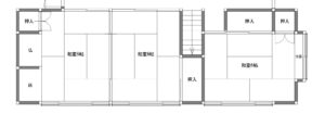
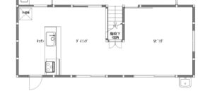
(既存平面図 リノベーション改修工事一部)
before
⇩
after
(和室)
before
⇩
(リビング パースイメージ)
after
(和室6帖 二間 押入れ部分を撤去します)
before
⇩
(ダイニング・リビング パースイメージ)
after
奥様のご要望で
対面式キッチンを採用しへ、
リビングもダイニングも家族の気配が自然と
届くようレイアウトしました
キッチンに立つと、
お子さまが遊ぶ姿や宿題をがんばる様子が
目に入ります
キッチンに居ながら
〝テレビも一緒に観られるかな〟と、
奥様もご家族との時間を自然に共有できます
ダイニングは、家族が集まり賑やかに
暮らしの中心となる空間です
リノベーションの打合せでは、
いつもご夫婦のまわりにお子様がいて、
とても賑やかでした
ご主人は穏やかに見守り、
奥様はそっと抱き寄せてあげていて、
その様子が微笑ましいんです☺
お子様の笑い声が響くたび、
こちらまでつい笑顔になってしまうような、
あったかい打合せ時間でした
相談会での出会いから、現地確認・
プランづくり・そして着工へ
O様の想いが込められたお住まいが
新しく生まれ変わります
理想の暮らしをカタチになるよう、
スタッフ一同、一生懸命
取り組んでまいります!!
完工は、6月中旬を予定しています














