出雲市実家部分リノベーションH様邸お引渡し
投稿日:2023.02.20
みなさんこんにちは!
リノベーション専門店
夢工房の大倉です
いつもHP訪問
ブログ閲覧いただき
有難うございます
昨年の10月に着工しました
出雲市H様邸が完工し
先日お引渡しいたしました
お引渡しの際は各メーカーさんから
使用説明があります
キッチンの説明

お風呂の説明


H様邸は現在お施主様のお母様が
1人で暮らしていらっしゃいますが
近い将来ご実家に戻られるということで
ご依頼をいただきました
母屋側は減築をして水廻りを整え
LDKを作ります
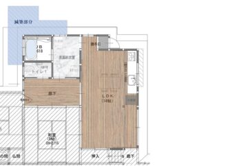
BEFORE図面

AFTER図面

着工前のダイニングキッチン

改修後のダイニングキッチン

和室を取り込み
広いLDKになりました

H様邸はお施主様の明確なご要望がありましたので
お施主様の想いが全て形になっています
図面の左下部分の和室は
夏場は建具を開けて使われるそうです
リビングがさらに広くなり
お子様家族と集われる際に
とても良さそうですね♪
出雲市地域は
和室二間続きや
和室が田の字になっている
お宅が多いです
客間だから物を置いておけない・・・
一番日当たりが良い部屋なのに
使用頻度は少ない・・・
そうおっしゃる方が多いです
現在のライフスタイルに合わせて
暮らしやすい家づくりを
お考えになられてはいかがでしょうか
高岡体感ギャラリーでは
二間続きの和室と縁側を取り込み
広々LDKにしています
ぜひご来場いただきご体感ください!
家づくりのご相談は
リノベーション専門店
夢工房まで!!







