施工事例
出雲市 E 様邸
戸建て住宅離れリノベーション施工事例
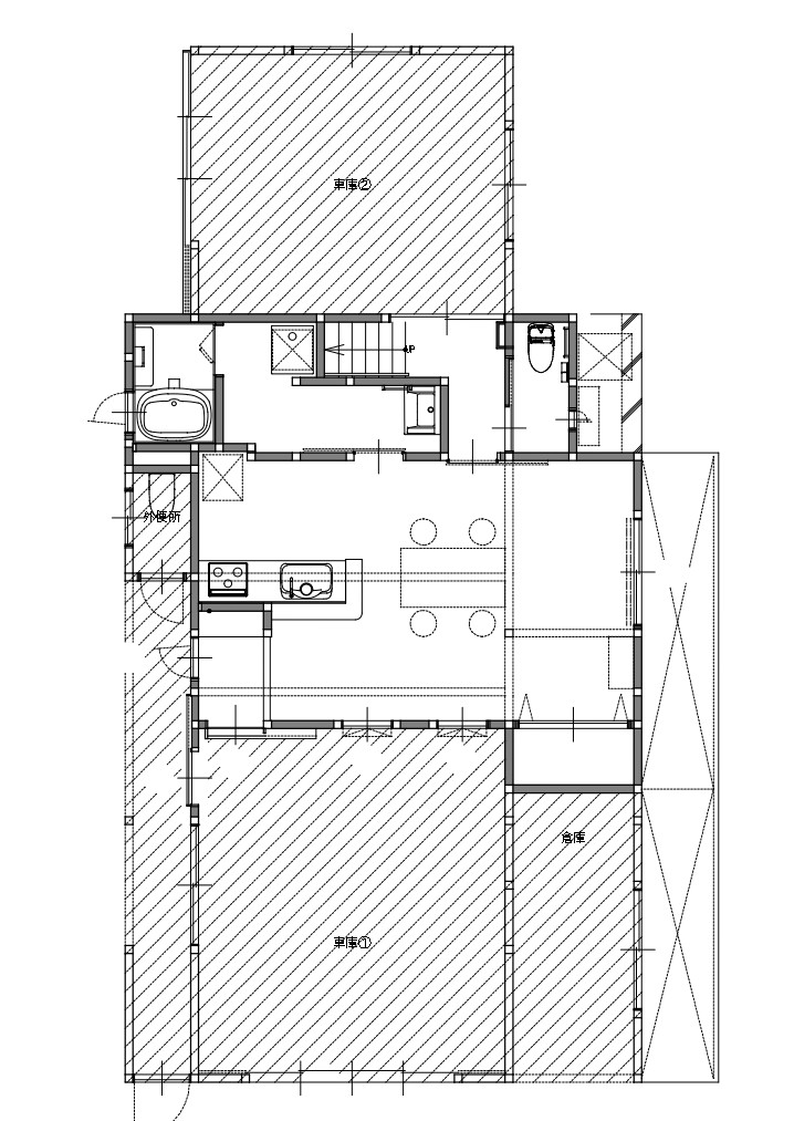
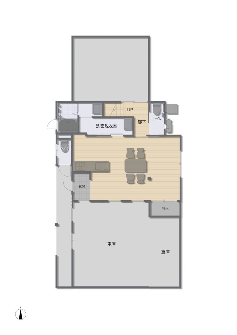
間取り図
過去に移築およびリフォームが行われていた建物を、離れ住宅として再リノベーションしました。
今回の工事では、LDK・水回りを中心に設備や内装を刷新。
2階は既存を活かし、フローリング貼り替えなど部分的なリフォームに留めています。
必要な部分に手を入れることで、無理のない改修計画としました。
お問い合わせ
ご相談・お問い合わせはこちらから
お気軽にいつでもご相談ください。
夢工房では、実際に見て、体感して、確かめることができる
体感ギャラリー、ショールーム、モデルハウスを
ご用意しておりますので、お気軽にお立ち寄りください。

































